前 言
2020年,一場突如其來的“新冠肺炎”疫情,改變了所有中國人的日常,前所未有的宅家生活,也給了大家重新審視房子的機會,越來越多的人對房子對居所有了一個全新的理解和認識,房子的意義遠不僅是固定資產,更是承載凝聚性、安全感與歸屬感的“心靈歸所”。尤其是一些處于人生“特殊階段”的人群:如年輕無房的白領意識到工作城市置業從0到1要趁早;家有學齡前兒童的二孩家庭對特殊功能空間的需求愈發迫切;退休養老一族認為只有帶庭院的別墅安全最舒適······可以說,在這個超長假期中,宅在家里的人們都有了新的體驗和居住痛點。
買到屬于自己的好房子,是每個階段人群的重要目標,也是大部分人一生的追求。星聯芒果集團,四大產品系迭代升級,同步現映,全生命周期產品結構滿足首置、改善的多種置業需求。
01穩扎白沙,規劃兌現 板塊潛力有目共睹
星聯芒果集團創始于2005年,是一家提供綠色建筑產品和健康生活服務的大型綜合性百億級企業。實力非常強勁,業務相繼落地鄭州、開封、中牟、新密、新鄭、信陽、洛陽、北京、深圳、武漢、三亞等城市,堅守精品路線,打造出了新芒果大廈、雙河灣、鄭州立體世界、藍灣國際、新芒果春天等多個享譽市場的品質項目。2019年,星聯芒果集團憑借雄厚的企業實力與良好的口碑形象榮獲“CIHAF2019中國房地產名企”獎。

本土出身讓星聯芒果集團對于鄭州各個區域的潛力有著自己的理解,初識白沙組團時,星聯芒果集團便預見了區域的價值與珍貴。白沙組團,西起京港澳高速,東至萬三公路,北起黃河鄭州市界,南至隴海鐵路,總面積156平方公里。組團中心區面積79平方公里,西起京港澳高速輔道,東至萬三公路,北起連霍高速,南至隴海鐵路。白沙組團位于中原經濟區的核心位置、鄭州都市區的東部新城,處在都市區兩條“十字形”空間發展軸線的交會處,是鄭州都市區重要的組成部分。
白沙組團作為省委承接地,主要動力是行政驅動,且臨近鄭東CBD,布局教育、科技、服務產業,便捷屬性突出。園區的定位從規劃初的“產業布局主要以科技教育、高新技術產業為主,職教與創新產業基地為輔,兼有居住、商務服務、房地產等功能。”到“以構建省級行政服務區、公共文化活動示范區、高端商務區為主要功能的生態智慧省級公共服務核心區。”再到2019年,按照批復的主導產業和功能布局是重點發展電子信息、信息服務。按照多規合一、四集一轉、產城互動的要求,產業集聚區以鄭開大道東西方向為主要發展軸,規劃建設大數據產業園、總部商務園、生命科學園、職業教育園、科學谷、省級公共文化服務中心和生態景觀走廊,形成“一軸、一廊、四園、一谷、一中心”的空間結構。

近年來區域成果不斷,象湖生態逐漸完善、地鐵8號線建設、文化設施的建設啟動、大波省直廳局單位開始進駐、科學谷軟件小鎮一期14宗地成功出讓……白沙組團可謂步入了發展的“黃金時代”。六合CBD以高端商務為核心功能,打造集經濟、金融、商業、貿易、文化娛樂及相關配套服務功能為一體,比肩鄭東CBD的商業新地標。未來這里凝聚著城市一級資源與城市配套,將成為鄭東新的商業、財富集聚地。

河南省科技館效果圖
據3月24日《河南新聞聯播》報道:3月23日下午,省長尹弘前往省美術館新館、河南博物院新院擬選址地、河南博物院進行實地察看,親臨白沙組團象湖南河南博物院擬選址地,調研新項目選址及規劃。隨后主持召開專題會,就加快省級公共文化重點項目建設進行研究,意味著白沙片區河南省級文化事業發展正在一步一步向著既定的方向快速推進……

省長親臨白沙組團實地調研新項目選址及規劃
白沙組團市政配套的完善和產業格局改變帶動了經濟發展的突飛猛進,近些年,越來越多的鄭州置業者、投資客以及開發商將目光投向了這個以前不被人關注的鄭州新區。隨之而來的就是該區域房地產市場的一片紅火,吸引了建業、融創、永威、雅居樂、藍城、亞新、偉業等一眾房企大鱷的入駐,并且隨著區域發展日趨完善,政府機構入駐的越來越多,核心區域住宅用地越來越稀缺。土地稀缺催生出一波品牌項目提升片區開發的檔次,同時也造成了相互之間在產品追求上的激烈競爭,他們憑借各自深厚的高端產品經驗打造產品,白沙組團區域有望成為鄭州向東發展一顆璀璨的明珠。
乘白沙組團發展的東風和鄭州市區北移東擴的戰略機遇,星聯芒果集團在白沙片區這樣寸土寸金的板塊上提前布局,打造了星聯·御象湖、星聯灣、星聯·楓橋灣、星聯·嵐溪府高端品質標桿項目,疊加集團15年開發經驗,未來隨著白沙組團區域的發展以及軌道交通的延伸,星聯芒果集團將憑借項目優勢進一步鞏固集團在白沙組團的獨特地位和優勢。
02星聯·嵐溪府,滿足幸福家的多重想象
星聯·嵐溪府是星聯芒果集團匠心打造的品質項目,作為集團最高產品序列的府系產品,星聯芒果集團帶著對鄭州人居持續深入的理解與感悟,以一部全新的超越之作,續寫著自己品質標桿的進階之路,不論是流線型建筑設計,還是奢配豪宅標準的鋁板材質、雙層low-e玻璃,星聯·嵐溪府都以全新的藝術姿態,打破了傳統住宅生硬冰冷的形象,引領城市的全新建筑美學,重新定義城市人居生活理念。

項目位于中山路開來路交匯處向東200米,處于鄭東新區白沙組團核心居住區東側,總占地面積46296.01㎡,約69.4畝,總規劃建面192514.43㎡,容積率2.9,建筑密度20%,產品涵蓋98-169㎡的三房、四房,多個面積段設計,滿足不同的置業需求。

作為集團首次亮相鄭州的城市封面之作以及星聯健康戰略的實踐藍本,項目從建筑、配套、服務出發首創“健康家”體系,為居者帶來更美好居住體驗的同時,也將為白沙片區乃至鄭州城市人居進化賦能。
建筑方面,項目共規劃9棟品質高層,樓棟外立面采用白色鋁板及中灰色外墻涂料,局部太空鋁板材料,結合三維曲面線條,整體外觀造型隨著線條的拼接和錯動形成如音律般的美感,讓整個樓體看起來更加大氣、優雅,別出心裁。

自然的豐茂,蘊養了生活的豐盈。項目積極營造健康舒適的居住環境,內部建造1.5公頃的中央森林公園,五級立體景觀,盡覽四季繁華,與2.7公頃市政公園雙園聯動,打造錯落有致,極具韻律的自然人文景觀,讓人與人、人與自然空間交互和聯通。

再加上項目配置有下沉式會所,社區便民中心和健康管理中心,周邊配套5公里半徑醫教俱全,文化商業繁華便捷。省圖書館、博物館、科技館、文化廣場林立;新田360廣場、方特歡樂世界、建業·華誼兄弟電影小鎮等環伺,仁愛路中小學,鄭東新區龍華中小學,河南省實驗中學等學府近在咫尺,書香環繞;省腫瘤醫院、河南省第三人民醫院等醫院在旁等,一種前所未見的生活范式,自此拉開帷幕。


經歷這次疫情之后,人們越來越注重健康與住宅的深層關系,開始重新定義“好房子”的居住標準。在眾多的探索、實踐健康住宅的房企中,主打健康地產核心理念的星聯集團,應該是當下住宅領域的引領者之一。拿星聯·嵐溪府為例,不僅強調產品力,更倡導生活方式。
星聯·嵐溪府深知一個良好的自然環境、一個愉悅的交際圈以及優質醫療配套齊全對于康養居住都至關重要。因此,在健康地產開發方面,星聯·嵐溪府將建筑本身、社區配套和服務與健康理念進行深度融合,不僅嚴苛項目的開發設計、選材用料、建造工藝,更將入住后業主所能享受到的配套與服務作為準則,用心打造全齡健康社區。

項目配置健康管理中心,日常可為客戶提供健康體檢、健康管理、健康教育等健康支持服務,同時星聯借助自身醫院的優勢,配備有健康管理師,可提供家庭醫生、居家護理等居家健康服務,同時還將定期組織健康主題沙龍及健康知識宣教,引領健康生活方式。
健康社區的打造,不止于園區的打造,新的生活方式的塑造也是其重要的一環。星聯·嵐溪府回歸產品主義、關注業主生活的核心需求,力求營造一個可以安放身體,寄放心靈,安居精神的空間,讓每一位家人能夠安住當下。可以說,這里蘊含了每個鮮活家庭對未來美好生活的期待。
03多重空間,更懂生活的每一種可能
美國建筑師約翰·波特曼曾說過:“建筑的實質是空間,空間的本質是為人服務”。從建筑之美到社區之美,再到承載日常細節的室內空間,星聯·嵐溪府不惜工本,力求以如琢如磨的筆觸,打造熨帖全齡段居者心意的美好社區。

星聯·嵐溪府從戶型空間功能設計入手,將業主不同時期的家庭需求和居住痛點納入考量,為城市家庭提供全面居住解決方案。項目主要以多個面積段的三房、四房為主,讓更多的光與影的交流碰撞,演繹關于自然、城市、生活的美學。
特別是在漫長的居家防疫假期中,更多的人口在同一時間聚于一室,更頻繁的使用基礎功能空間,很多人都意識戶型空間、采光以及通風的重要性。星聯·嵐溪府按照優越的采光及通風原則進行戶型打造,南北通透、軒敞闊綽、合理布局的空間里,動靜分區,無論是在客廳閑聊,還是在臥室休息,L型超大陽臺,讓全家都能感受到陽光與清風的滋養,營造健康而又優雅的生活。

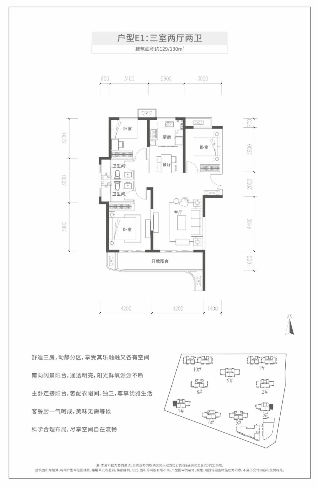
如建筑面積約130㎡的三房兩廳兩衛,深研空間與光的無限性,主臥與客廳陽臺互通設計,讓房子處處陽光充沛。項目注重空間功能的搭配,將客、餐廳、陽臺連成一線,延展視野和公共活動區域。臥室布局邊角,雙衛生間設計,給予家庭成員足夠的獨立空間,滿足全家人互不干擾的生活需求,實現新婚燕爾的隨心喜好、滿足三口之家的育兒喜悅、達成三代同堂的人生理想。

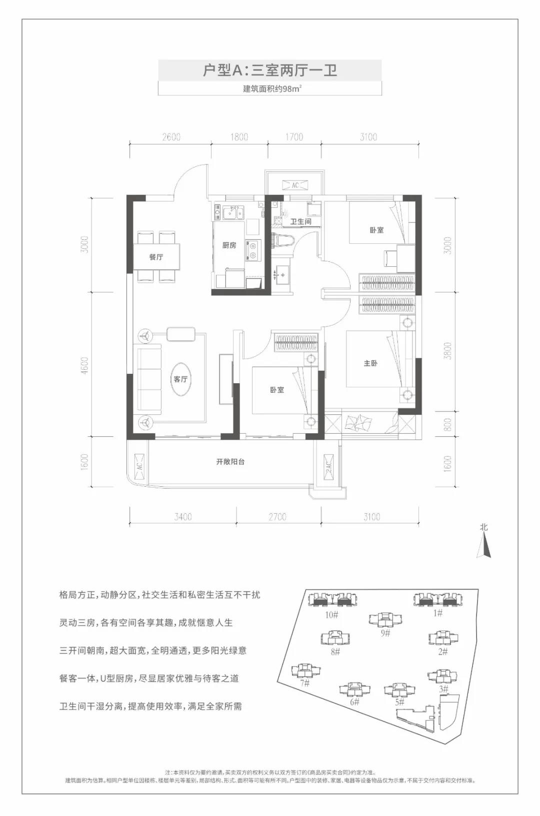
嵐溪府深知,客戶想要的產品空間,不是呆板和固化的,而是能經得起家庭成員周期升級考驗的“可成長空間”。從建面98㎡到169㎡,嵐溪府深研空間設計理念,保證每個空間的完整功能,讓每個年齡段的家人,都能找到自己的生活主場,使之能夠滿足和陪伴居者全生命周期的成長性需求,讓空間利用率最大化。左右滑動查看更多選擇一處居所,就是選擇一種生活方式。嵐溪府除了在戶型上對人居舒適的深度思考之后,還對所有戶型全部精裝修交付,從前期設計、設備選型、材料選購、驗收到施工監控都有專業人員嚴格的操作規范把關,更不惜成本,堅持在衛浴、廚電品牌上高額投入,以環保、安全、品質為標準,兼顧業主生活品質與健康。

房子不僅是居住的場所,更是心靈深處最安全的保護殼。星聯·嵐溪府以打造品質之宅為己任,營造向往生活為目標,讓只有鋼筋水泥的房子,變成一個有溫度的家,讓每一位居者和家人在這一平一方的空間里,放心安家。

結語:
不同的條件下,人們對居住的偏好會發生變化。一場疫情,暴露出了很多居住的痛點,人們通過疫情看到了居住的產品端價值,對產品有了更高的要求,也會愿意為真正全面升級的好產品買單。
而作為星聯芒果集團首次亮相鄭州城市封面之作的嵐溪府項目,在戶型設計、社區打造、智能系統等方面進行了多維創新,實現了現代健康住宅社區新模式,滿足了人們對環境健康、身體健康、心理健康的新需求。拋開各種紛繁復雜的表象,這里也許才是我們孜孜不倦追尋的“家”。



